Tree Market Project

 

 ออกแบบวางผังตลาดต้นไม้สบายใจ 
พท. 11 ไร่ 
สถานที่ วงแหวนกาญจนาฝั่งตะวันตก 
ถนนบรมราชชนนี กทม.











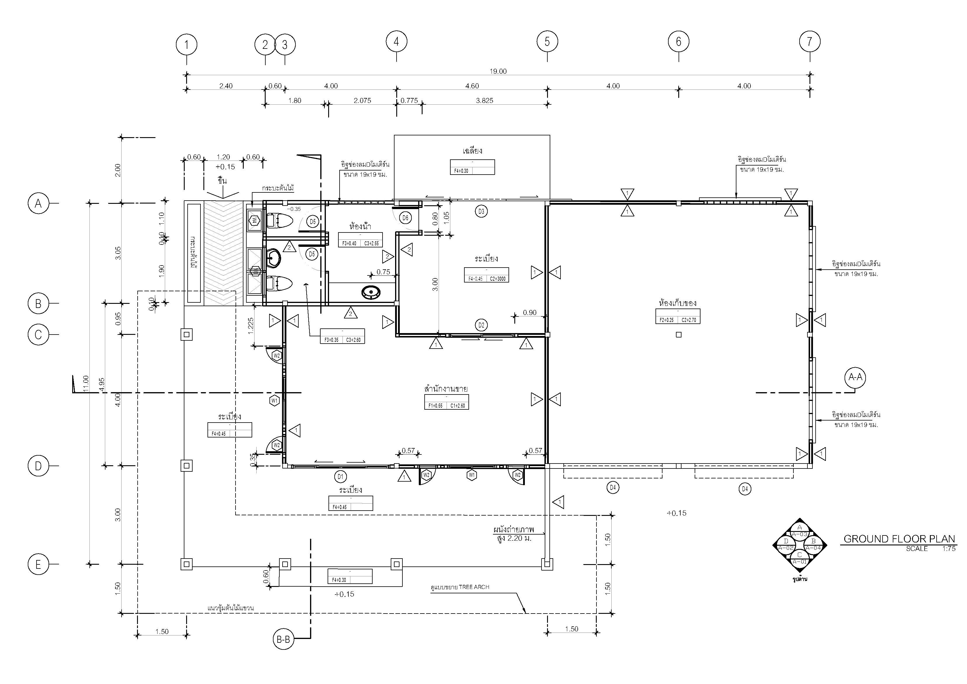
สำนักงานขายโครงการ






ไม่มีความคิดเห็น:

แสดงความคิดเห็น